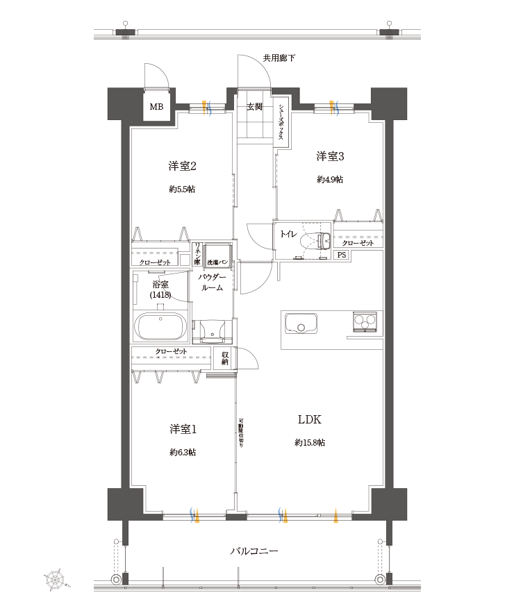
間取り
可動式間仕切りを開放すれば
LDKと一体感のある空間を演出する
3LDKプラン。
69.83㎡
(21.12坪)
12.06㎡
(3.64坪)
81.89㎡
(24.77坪)

家具付き間取り
通常間取り
:通風
:採光
【提携ローンのご案内】●提携ローン:宮崎銀行●融資期間:50年●返済方法:毎月元利均等返済・毎月元金均等返済(ボーナス返済併用可)●年利:0.725%(変動金利)●融資限度額:100万円以上2億円以内●ご利用いただける方:(1)お借入時の年齢が満18歳以上満71歳未満で、最終返済時の年齢が満84歳未満であること (2)安定かつ継続した収入があること (3)当社指定の団体信用生命保険に加入が認められること●保証人:原則不要●団体信用生命保険:保険料は銀行負担 ※2025年6月1日現在