| 価 格 | 2,730万円 | ||
| 担当コメント |
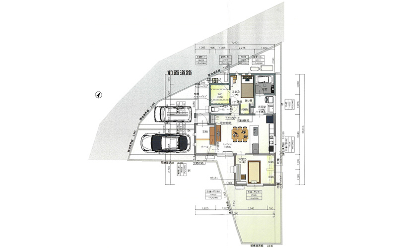
築浅の平屋で快適⽣活! ⼩学校まで徒歩5分の好⽴地! | ||
| 所 在 地 | ⿅児島県⿅児島市紫原3丁⽬41-22 | ||
| 交 通 | ⿅児島市電⾕⼭線 ⼆軒茶屋 徒歩15分 バス停 紫原3丁⽬ 停歩5分 |
||
| 土 地 権 利 | 所有権 | ||
| 地 ⽬ | 宅地 | ||
| 都 市 計 画 | 市街化区域 | ||
| 土 地 面 積 | 公簿 135.63㎡ | ||
| 築 年 ⽉ | 2024年11月 | ||
| 建 物(構造・規模/面積) | ⽊造・1階建/55.06㎡ | ||
| 建 物(間取内訳) | 2LDK(洋 4.8・3.8/LDK 12.5) | ||
| 駐 ⾞ 場 | 有(2台分) | ||
| 用 途 地 域 |
2種中⾼ | ||
| 建ぺい率/容積率 | 60%/200% | ||
| 地 勢 | ⾼台 | ||
| 現 況 | 所有者居住中 | ||
| 引渡し(時期/⽅法) | 相談 | ||
| 接道状況 (⾓地・間⼝) | ⾓地:2⽅道路(北7.7m 公道 接⾯7.0m/⻄ 公道 接⾯4.7m) | ||
| 設 備 | 主要採光⾯:南東向き,2⾯採光,オール電化,浴室暖房,浴室乾燥機,タンクレストイレ,温⽔洗浄便座,シャワー付洗⾯化粧台,IHクッキングヒーター,オープンキッチン,システムキッチン,⾷器洗浄乾燥機,全居室収納,ウォークインクローゼット,全居室フローリング,ダブルロックドア,庭 | ||
| 備 考 | 売主様居住につき、室内のご⾒学は事前のご予約とさせて頂きます。 まずはお気軽にお電話ください。 利⽤駅1:JR指宿枕崎線 南⿅児島 徒歩22分 | ||
| お問合わせ |
|
||
| 営業時間/10:00~18:00 定休日/毎週火・水曜日 |
|||
| ※現況と内容が異なる場合は現況優先となります。 ※ご見学希望の方は、事前に弊社担当までご連絡下さい。 |
|||
















